Bước đầu tiên của khi muốn lắp đặt thang máy trong nhà, gia chủ cần phải có được bản vẽ thang máy gia đình để hình dung sơ bộ về công trình sắp được lắp đặt của mình. Khi lựa chọn bản vẽ thang máy, nhiều người rơi vào tình trạng bối rối vì không hiểu đúng ký hiệu, không biết loại bản vẽ nào phù hợp với diện tích nhà mình.
Việc nắm được các bản vẽ thang máy gia đình tiêu chuẩn và hiểu đúng cách đọc bản vẽ là điều quan trọng để tránh sai sót, tối ưu không gian và đảm bảo kỹ thuật ngay từ đầu. Bài viết này, Hưng Phát sẽ giúp bạn tổng hợp 7 bản vẽ thang máy gia đình phổ biến nhất hiện nay, kèm hướng dẫn xem bản vẽ một cách đơn giản và chính xác nhất.

Nội dung bài viết
Bản vẽ thang máy gia đình là gì?
Bản vẽ thang máy gia đình là bộ tài liệu mô tả chi tiết kích thước, cấu trúc và cách bố trí thang máy trong ngôi nhà, giữ vai trò quan trọng trong toàn bộ quá trình thiết kế – thi công – lắp đặt. Việc hiểu đúng bản vẽ giúp gia chủ tránh sai sót kỹ thuật, hạn chế chi phí phát sinh và tối ưu tối đa không gian lắp đặt. Đồng thời, bản vẽ cũng là căn cứ để kỹ sư thi công kiểm tra độ chính xác trước khi đưa thang máy vào vận hành.
Tổng hợp 7 bản vẽ thang máy gia đình tiêu chuẩn
Hiện nay, rất nhiều loại bản vẽ thang máy với từng mục đích, chức năng, kích thước đặc trưng. Hãy cùng bắt đầu xem chi tiết từng bản vẽ.
Bản vẽ thang máy gia đình theo tải trọng
Với góc độ nhìn nhận của các cán bộ kỹ thuật, tải trọng là yếu tố cốt lõi ảnh hưởng trực tiếp đến toàn bộ hệ thống: từ kích thước hố thang, quy chuẩn an toàn đến khả năng vận hành ổn định về lâu dài. Vì vậy, mỗi mức tải trọng đều có bộ bản vẽ thiết kế riêng, nhằm đảm bảo phù hợp với nhu cầu sử dụng và điều kiện công trình.
Bản vẽ thang máy gia đình 250kg: Hố thang được thiết kế nhỏ gọn nhưng vẫn đáp ứng đúng tiêu chuẩn kỹ thuật. Cabin phù hợp cho 1–2 người, đảm bảo tính an toàn và ổn định trong quá trình vận hành.
Bản vẽ thang máy gia đình 300kg – 350kg: Qua kinh nghiệm triển khai thực tế, chúng tôi nhận thấy đây là mức tải đem lại sự cân bằng tốt giữa diện tích lắp đặt và nhu cầu sử dụng. Cabin chứa 3 người thoải mái, hỗ trợ tối ưu khi có trẻ nhỏ hoặc người cao tuổi.
Bản vẽ thang máy gia đình 450kg: Cabin rộng, vận hành êm, phù hợp cho người dùng xe lăn, xe đẩy trẻ em và nhu cầu vận chuyển hàng hóa nhỏ trong nhà.

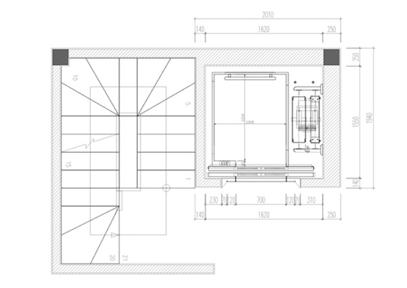
Bản vẽ theo vị trí lắp đặt
Từ góc độ chuyên môn, vị trí lắp đặt là yếu tố quyết định trực tiếp đến cấu trúc kỹ thuật, kích thước hố thang và phương án thi công. Mỗi không gian kiến trúc sẽ yêu cầu một dạng bản vẽ khác nhau nhằm đảm bảo tính an toàn, tối ưu diện tích và hạn chế tối đa can thiệp vào kết cấu nhà. Dưới đây là ba phương án bố trí phổ biến mà các kỹ sư thường triển khai bản vẽ thang máy gia đình trong thực tế:
- Trong lòng nhà: Bản vẽ phải đảm bảo sự đồng bộ giữa kết cấu dầm sàn, kích thước hố thang và hướng mở cửa để không ảnh hưởng đến luồng giao thông trong nhà.
- Ngoài trời (thang máy kính): Bản vẽ cho phương án này yêu cầu xử lý kỹ phần nền móng, chống thấm và khung kết cấu thép – kính để đảm bảo độ bền và khả năng chịu lực khi lắp đặt ngoài trời
- Giữa lòng cầu thang: Bản vẽ cần đảm bảo kích thước lọt lòng chính xác, đồng thời tối ưu vị trí đặt ray, cửa tầng và hệ thống điện nhằm đảm bảo an toàn vận hành.

Bản vẽ kết cấu hố thang máy
Theo đánh giá chuyên môn, cấu trúc hố thang là yếu tố kỹ thuật quyết định trực tiếp đến thiết kế bản vẽ, khả năng vận hành an toàn và độ bền của thang máy. Tùy thuộc vào điều kiện thi công, kết cấu công trình và loại thang máy, kỹ sư sẽ đề xuất các phương án bản vẽ thang may gia đình tương ứng:
- Có hố pit: Móng đào sâu 500 – 1.200mm, cabin dừng sát sàn tầng trệt, phù hợp nhà xây mới.
- Không hố pit: Dùng cho nhà cải tạo hoặc nền yếu, cabin đặt cao hơn sàn, kết hợp dốc kỹ thuật.
- Có phòng máy: Phòng kỹ thuật phía trên đỉnh giếng, thuận tiện bảo trì và lắp đặt máy kéo lớn.
- Không phòng máy: Máy kéo đặt trực tiếp trong giếng thang, tiết kiệm chiều cao và không gian.

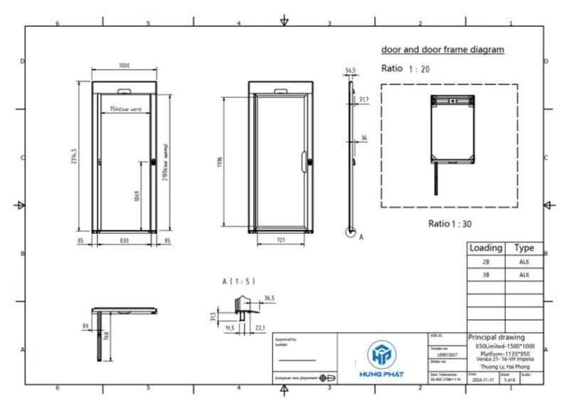
Bản vẽ cửa thang máy
Bản vẽ cửa thang máy xác định chính xác vị trí lắp đặt và chiều rộng cửa, ảnh hưởng trực tiếp đến lưu thông, an toàn và tiện nghi sử dụng. Gia chủ nên phối hợp với đội ngũ kỹ thuật để tối ưu không gian, điều chỉnh kích thước cửa khi cần, đảm bảo thang máy vận hành linh hoạt và phù hợp với thiết kế tổng thể của ngôi nhà.

Bản vẽ CAD thang máy
Nhận định của các kỹ sư chuyên ngành, CAD (Computer-Aided Design) – thiết kế hỗ trợ máy tính là công cụ quan trọng trong việc tạo ra các bản vẽ thang máy gia đình. Việc sử dụng CAD ngày càng phổ biến nhờ khả năng tạo mô hình 3D và bản vẽ 2D, giúp cả gia chủ lẫn kỹ thuật viên có cái nhìn trực quan, chính xác về thiết kế trước khi thi công.
Các bản vẽ CAD còn hỗ trợ phân tích, mô phỏng và kiểm tra kỹ thuật một cách nhanh chóng, giảm thiểu sai sót so với phương pháp vẽ tay truyền thống. Nhờ đó, quá trình thiết kế và lắp đặt thang máy trở nên an toàn, hiệu quả và tối ưu hơn.

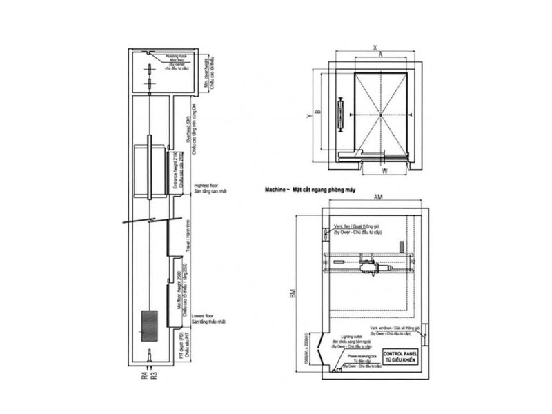
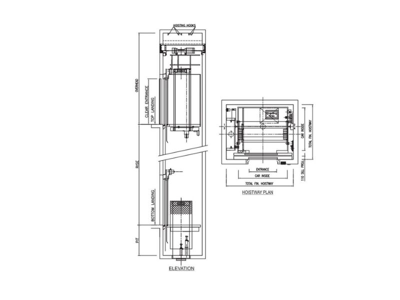
Bản vẽ giếng thang máy
Bản vẽ mẫu giếng thang máy cung cấp toàn bộ thông tin kỹ thuật cần thiết để thi công chính xác. Bản vẽ thể hiện mặt cắt ngang và mặt cắt dọc của giếng thang, chi tiết mặt cắt chân cửa nhôm tại từng tầng, cùng mặt đứng cho phép xác định kích thước thông thủy của ô cửa chờ tại các tầng.
Nhờ những thông tin chi tiết này, đội ngũ kỹ thuật có thể đảm bảo lắp đặt chính xác, tối ưu không gian và vận hành an toàn ngay từ giai đoạn thiết kế.

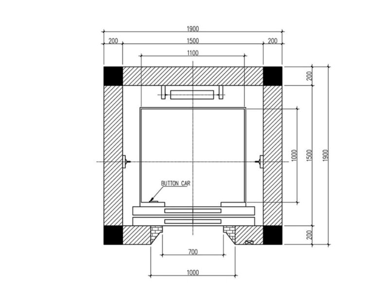
Bản vẽ bảng điều khiển thang máy
Trong bản vẽ này cung cấp các thông tin kỹ thuật cần thiết về hệ thống điều khiển của thang, thể hiện chi tiết vách điều khiển, vị trí phím bấm và tay nắm, đồng thời cung cấp hình chiếu cạnh và bản vẽ 2D của toàn bộ sàn thang, bao gồm cả kích thước sử dụng thực tế.
Những thông số này giúp đội ngũ kỹ thuật lắp đặt và vận hành thang máy một cách chính xác, đảm bảo tính tiện nghi và an toàn cho người sử dụng.

Hướng dẫn cách xem bản vẽ thang máy gia đình đúng kỹ thuật
Cách đọc ký hiệu trong bản vẽ
Để đọc được bản vẽ thang máy gia đình, trước hết cần phải hiểu được những quy ước ký hiệu chuẩn. Nhờ các ký hiệu này, người đọc có thể dễ dàng xác định vật liệu sử dụng, vị trí nội thất và các yếu tố kết cấu khác, ngay cả khi toàn bộ thông tin được thể hiện trong một bản vẽ nhỏ gọn.
Dưới đây là bảng quy ước ký hiệu chuẩn, mọi người xem để nắm rõ hơn.

Đọc bản vẽ theo thứ tự
Các chuyên gia trong ngành chia sẻ rằng, để nắm bắt đầy đủ và chính xác thông tin trên bản vẽ thang máy gia đình, gia chủ nên đọc theo thứ tự hợp lý để tránh nhầm lẫn:
- Đầu tiên, đọc bản vẽ mặt bằng phối cảnh tổng thể của toàn nhà theo từng tầng, giúp hình dung vị trí lắp đặt thang trong tổng thể kiến trúc.
- Tiếp đến, bản vẽ mặt cắt hai cạnh của khu vực lắp thang, cung cấp thông số kỹ thuật về chiều cao, vị trí dầm và kết cấu hố thang.
- Thứ tự tiếp theo, bản vẽ chi tiết giếng thang, thể hiện kích thước chính xác và các chi tiết kỹ thuật quan trọng.
- Cuối cùng, bản vẽ tổng thể thang máy, tổng hợp toàn bộ thông số, đảm bảo các yếu tố kỹ thuật được kiểm tra trước khi thi công.
Thực hiện theo trình tự này giúp gia chủ và đội ngũ thi công hiểu rõ cấu trúc, tối ưu không gian và tránh sai sót kỹ thuật.
Hiểu được kích thước bản vẽ
Các tỷ lệ phổ biến trên bản vẽ xây dựng như 1:5, 1:10, 1:50, 1:100, 1:200, 1:500, 1:1000 và 1:2000 phản ánh mối quan hệ giữa kích thước thang máy trên bản vẽ và kích thước thực tế. Việc lựa chọn tỷ lệ phù hợp phụ thuộc vào mức độ chi tiết và khổ bản vẽ.
Trong thực tiễn, tỷ lệ từ 1:5 đến 1:30 thường được sử dụng nhiều nhất, giúp thể hiện chi tiết kỹ thuật rõ ràng trên các khổ giấy từ A0 đến A4, đảm bảo kỹ sư và thợ thi công có thể đọc và triển khai chính xác từng hạng mục.

Vì sao nên sử dụng bản vẽ thang máy gia đình tiêu chuẩn từ đơn vị uy tín?
Sử dụng bản vẽ thang máy gia đình tiêu chuẩn từ đơn vị uy tín là bước then chốt giúp đảm bảo tính chính xác kỹ thuật, an toàn và hiệu quả vận hành của thang máy gia đình. Bản vẽ chuẩn không chỉ phản ánh đúng kích thước, cấu trúc hố thang, vị trí cửa, mà còn giúp đội ngũ thi công tránh sai sót, tiết kiệm thời gian và chi phí chỉnh sửa trong quá trình lắp đặt.
Công ty Hưng Phát là đơn vị uy tín hàng đầu trong lĩnh vực cung cấp và lắp đặt thang máy nhập khẩu cao cấp, cùng các hệ thống máy phát điện từ những thương hiệu nổi tiếng thế giới. Chúng tôi đã triển khai thành công các dự án tại Vinhomes, Ciputra, Gamuda Gardens, Ecopark…, mang đến những sản phẩm thang máy tiên tiến, an toàn và thẩm mỹ vượt trội.

Với Hưng Phát, quý khách hàng hoàn toàn yên tâm về chất lượng bản vẽ, tiến độ thi công và dịch vụ hậu mãi, khẳng định vị trí tiên phong trong chuỗi dịch vụ thang máy nhập khẩu cao cấp tại Việt Nam.
Qua nhiều năm kinh nghiệm trong nghề, Hưng Phát dần phát triển và hình thành các showroom cả Bắc và Nam:
Showroom Hà Nội : B6-18, Khu B mới, Khu đô thị Geleximco, đường Hoàng Tùng, P. Tây Mỗ, TP.Hà Nội.
Showroom Hưng Yên: CL11-63 Khu Đô thị Vinhome Ocean Park 2 (The Empire), X. Nghĩa Trụ, Tỉnh Hưng Yên.
Showroom Hồ Chí Minh: P2-00.13 CH2A, Khu Đô Thị Cityland Park Hills – Số 18 Phan Văn Trị, P. Gò Vấp, TP.Hồ Chí Minh
SĐT: 0901 295 888
Email: hungphatjsc.com.vn
Với các thông tin trên, hy vọng rằng các bạn có thể hiểu rõ hơn về bản vẽ thang máy gia đình. Liên hệ với Hưng Phát ngay để nhận được tư vấn tốt nhất trong lắp đặt thi công thang máy nhé!


Bài viết mới
Bàn giao thang máy Fuji nhập khẩu đồng bộ nguyên chiếc tại Bình Dương
Thang máy Hưng Phát hân hạnh là đơn vị cung cấp và lắp đặt thang...
Th1
Bàn giao thang máy Gemanlift tải trọng 630kg 9 stops tại Mỹ Đình (12/2025)
Thang máy Hưng Phát hân hạnh là nhà cung cấp và lắp đặt thang máy...
Th1
Quy trình chạy thử kiểm tra thang máy theo tiêu chuẩn kỹ thuật
Việc chạy thử và kiểm tra thang máy là bước quan trọng để kiểm tra...
Th1
Bàn Giao 2 Thang máy lồng kính Tải Trọng 1350kg Thương Hiệu NIPPON
Thang máy Hưng Phát đã hoàn thành việc giao hàng và bàn giao 2 thang...
Th1
Lắp đặt 7 thang máy cuốn tại trung tâm quận 1 Hồ Chí Minh
Thang máy Hưng Phát hân hạnh là nhà cung cấp và lắp đặt 7 thang...
Th1
Các Dòng Thang Máy Không Hố Pít Phổ Biến Hiện Nay: Giải Pháp Hoàn Hảo Cho Nhà Cải Tạo
Trong xu hướng kiến trúc hiện đại, thang máy không hố pít đang trở thành...
Th1
Bàn giao thang máy Fuji nhập khẩu tại Quận 7 Hồ Chí Minh
Bàn giao thang máy FUJI Nhật Bản (xuất xứ Trung Quốc) nhập khẩu đồng bộ...
Th1
Khung thép thang máy là gì? Giải pháp tối ưu cho nhà cải tạo
Trong những năm gần đây, khung thép thang máy ngày càng được sử dụng phổ...
Th1